U elektroničkom oglasniku javne nabave RH objavljena je javna nabava za izgradnju novoga Vatrogasnog doma u Malom Lošinju površine 3770 m2.

Nova zgrada javne vatrogasne postrojbe Grada Mali Lošinj gradit će se na novoformiranoj čestici 4823/1 k.o. Mali Lošinj, na prostoru gospodarske zone Kalvarija.
Arhitektonsko oblikovanje građevine – pravokutnog oblika s ravnim korovom – primjereno je lokalnoj tipologiji i zahtjevima naručitelja. Autohtonim raslinjem ozelenit će se 933 m2 površine građevinske čestice, a na parceli je također predviđen i prostor za odlaganje otpada, dimenzija 4,00 x 2,00 na betonskoj podlozi.
Ulaz u etažu suterena je sa sjevoroistočne strane, a glavni ulazi u zgradu su na etaži prizemlja s jugozapadne strane. Vertikalna komunikacija između etaža su dva dvokraka stubišta. Jedno stubište (zapadno) povezuje sve etaže zgrade (od suterena do kata), dok drugo stubište (na istočnoj strani ) povezuje samo etažu prizemlja sa katom.

U suterenu zgrade nalazit će se dvorana s predprostorom, izložbeni salon, fitnes, desantna jedinica, garaža, spašavanje iz ruševina i spašavanje iz visina i dubina, skladište, ronioci, prostor za čistačice, boce sa zrakom, muške i ženske garderobe s tuševima, muški i ženski wc, wc za invalide, muški i ženski wc s vanjskim ulazom i pomoćni prostori (toplinska podstanica, agregat, kompresor) te stepenište za gornje katove.
U prizemlju zgrade nalazi se garaža, garderobe muške i ženske s wc-ima, čajna kuhinja, prostor za pranje čizmi, prostor za opremu i 2 stepeništa za gornji kat.
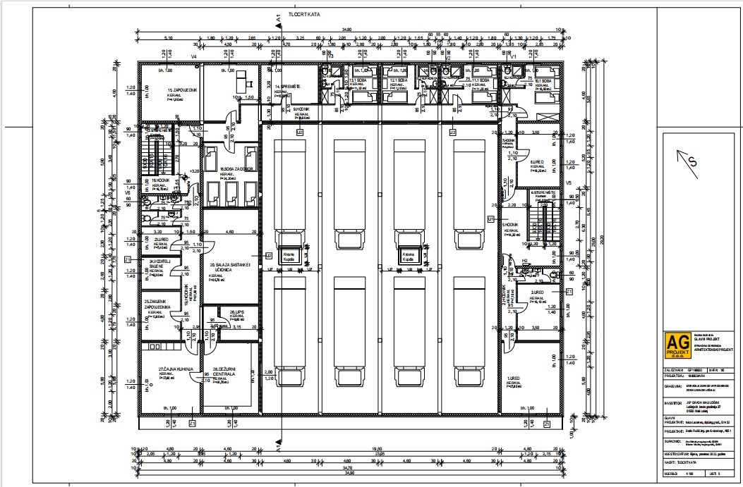
Na 1. katu nalaze se prostorije za dužnog, za zapovjednika, za zamjenika zapovjednika, za voditelja smjene, uredi, sobe sa kupaonicom, spremište, sala za sastanke (učionica), muški i ženski wc-i, soba za odmor, čajna kuhinja i prostor za UPS.
Pored zgrade vatrogasnog doma nalazit će se vatrogasni toranj.

Projektirani vijek trajanja građevine je 80 do 130 godina, što uključuje nosive zidove, stropne i krovnu konstrukciju, stubišta i sve armiranobetonske i betonske konstrukcije, dok su zidne obloge procijenjene na 60 do 100 godina. Vlasnik građevine dužan je osigurati održavanje građevine tako da se tijekom njezinog trajanja očuvaju bitni zahtjevi za građevinu, unaprjeđivati ispunjavanje bitnih zahtjeva za građevinu te je održavati tako da se ne naruše svojstva građevine.
Investitor je Javna vatrogasna postrojba Grada Malog Lošinja. Vrijednost projekta iznosi 4,37 milijuna eura s PDV-om, a rok za dostavu ponuda je 28. srpnja 2025.
“Ovo je važan iskorak u jačanju sigurnosti našeg otoka i stvaranju kvalitetnijih uvjeta za rad naših vatrogasaca, koji svakodnevno čuvaju naše živote i imovinu. Projekt kojem se zajednica dugo nadala sada je na korak do realizacije”, poručila je gradonačelnica Malog Lošinja, Ana Kučić.




Prostor za dužnog???